Chủ đầu tư Senturia An Phú đã thiết kế và quy hoạch mặt bằng một cách chuyên nghiệp. Khách hàng sẽ có thể xem chi tiết chi tiết về mỗi sản phẩm. Ngay dưới đây, đội nhóm chuyên gia sẽ trình bày cho các quý khách tổng quan và chi tiết mặt bằng của dự án Senturia An Phú.

Mặt bằng Senturia An Phú bao gồm những loại hình sản phẩm nào?
Dự án Senturia An Phú có diện tích 8,6 ha dành cho việc phát triển nhiều loại hình. Trong đó, nhà phố, shophouse và biệt thự có nhiều tiện nghi. Chỉ 40% toàn bộ dự án được dành cho xây dựng, còn lại là cây xanh và mặt nước.
Với chỉ 350 sản phẩm, một quy hoạch đồng bộ đã được thiết lập. Địa Trung Hải thoáng mát và hòa hợp với thiên nhiên là nền tảng của kiến trúc hiện đại.
Các sản phẩm bất động sản có không gian thoáng đãng và rộng rãi. Tận dụng sông nước, cây xanh và ánh sáng thiên nhiên trong toàn bộ khuôn viên. Tất cả sản phẩm đều hướng về dòng sông Giồng Ông Tố, làm tăng giá trị của khu vực an cư.
Đường Song Hành là mặt tiền của tất cả các căn shophouse. Khu nhà phố thương mại ở phía sau sử dụng đường nội bộ dự án để thúc đẩy kinh doanh. Tại trung tâm của quần thể, biệt thự song lập giáp với rạch Mương Kinh. Các khuôn viên còn lại dành cho nhà phố bao gồm các tiện ích và cây xanh.

Nói chung, đây là một dự án đô thị xanh và không có chung cư cao tầng.
Mặt bằng Senturia An Phú
Kiến thiết Senturia An Phú là một mảnh đất hình dạng chữ nhật đẹp. phát triển 355 sản phẩm, trong đó chi tiết mặt bằng thiết kế được trình bày dưới đây.

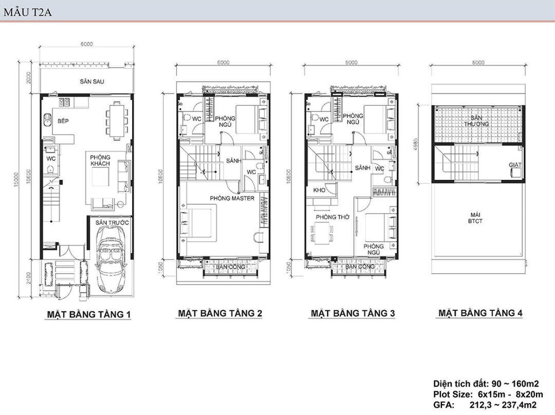
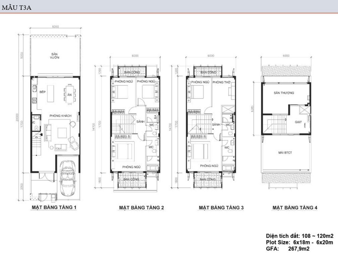
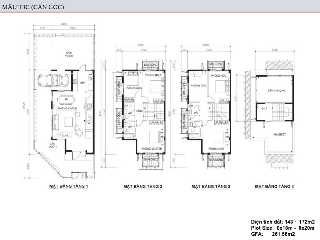
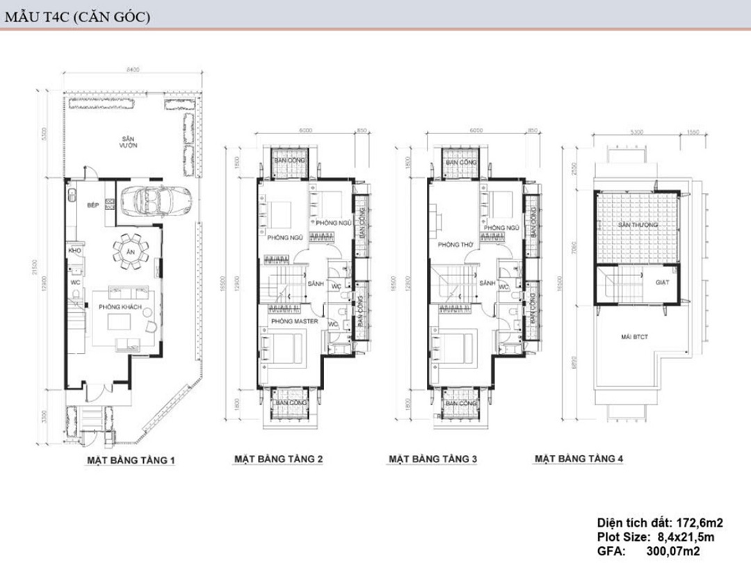
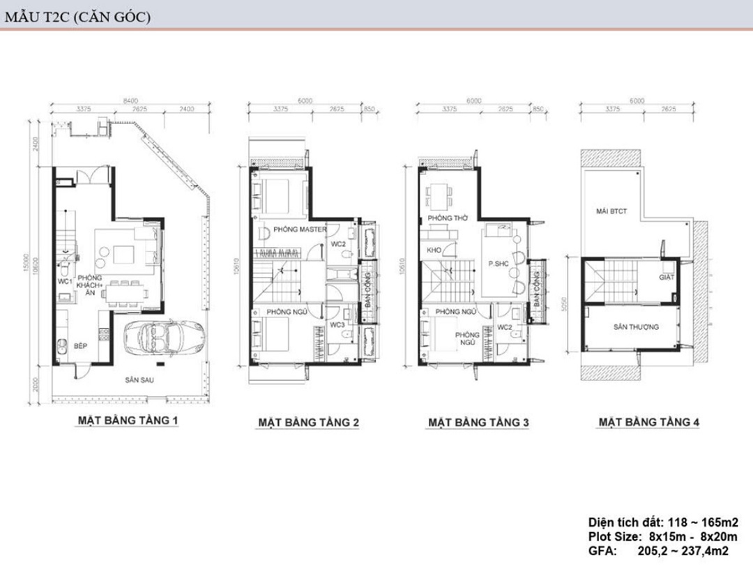
Mặt bằng nhà phố Senturia An Phú
Nằm ở khu vực yên tĩnh và trong lành của dự án. Số lượng 202 căn nhà phố được quy hoạch có diện tích từ 75 đến 204 mét vuông. (5 x 15 m, 6 x 20 m, 6 x 21.5 m). Các nhà phố có 4 tầng (1 trệt, 2 lầu và sân thượng).
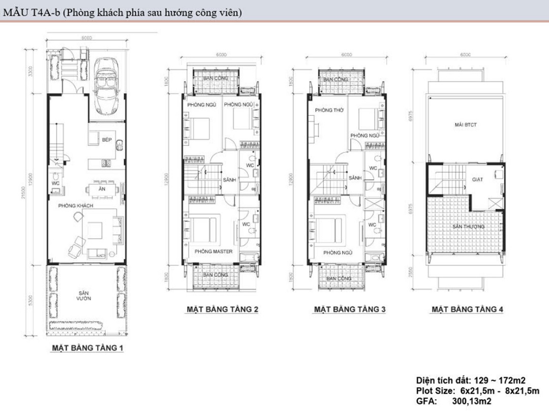
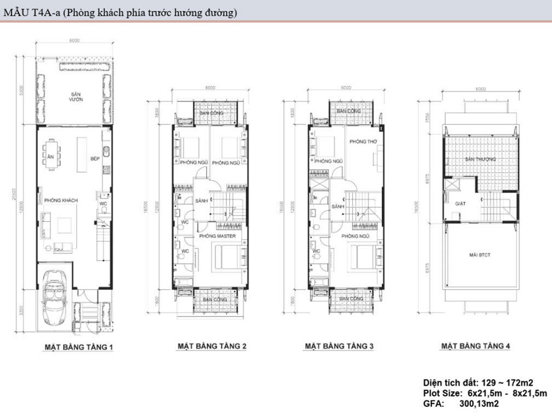
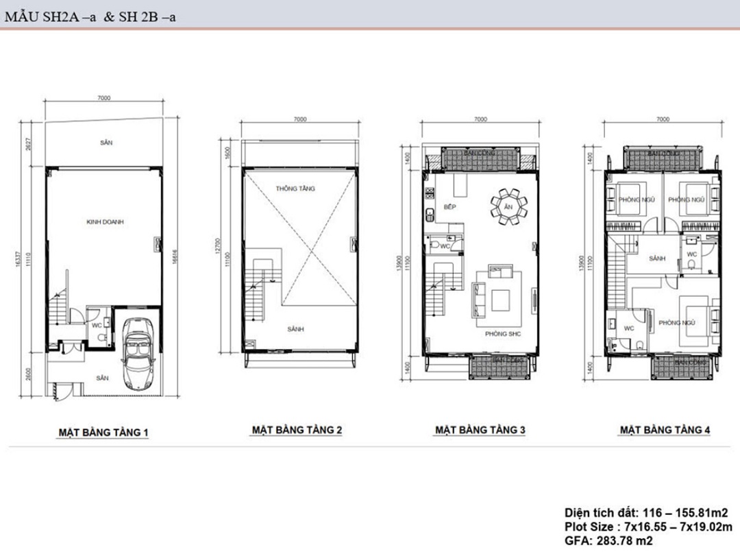
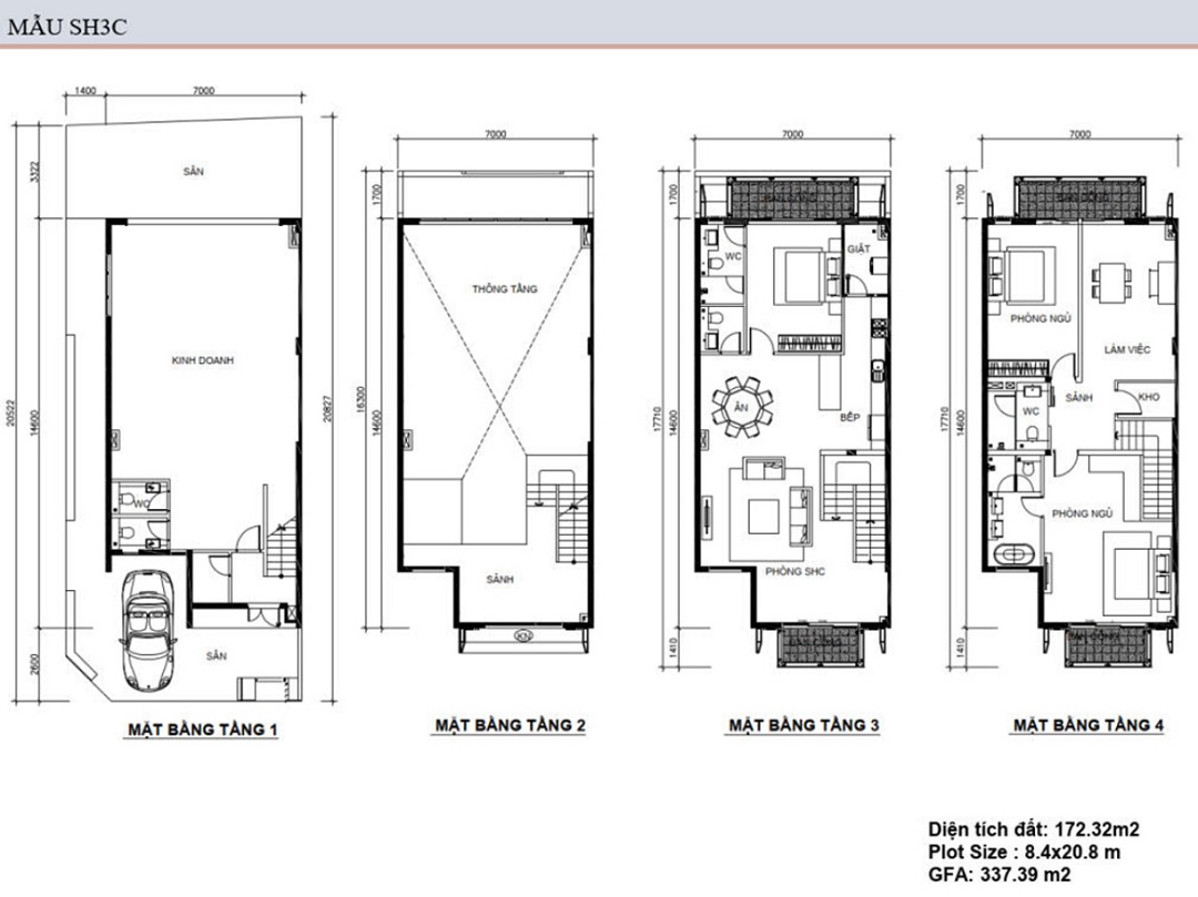
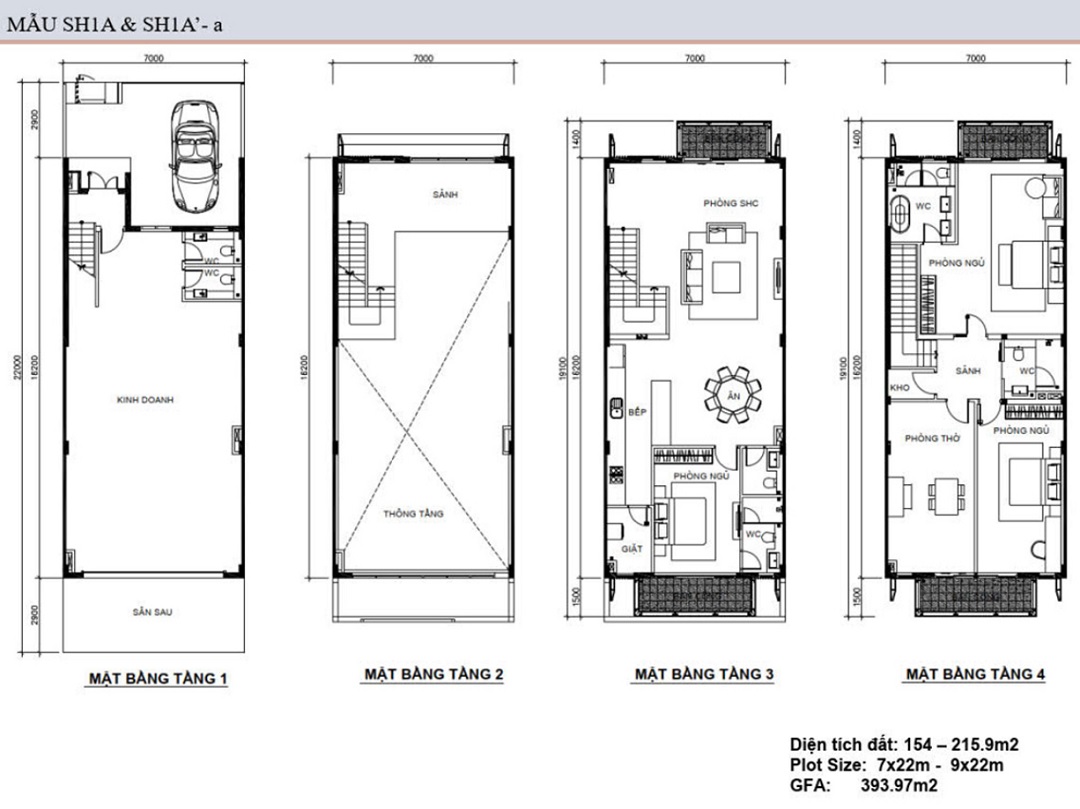
Shophouse Senturia An Phú, mặt bằng thương mại
Nó có mặt tiền đường lớn và mặt tiền đường nội khu. Cơ hội sống và kinh doanh tại nhà phố thương mại dự án này rất có thể. Có 91 căn có diện tích từ 116 đến 215 mét vuông. 7x17m và 7x22m là phù hợp về công năng. xây dựng các sản phẩm phù hợp cho các gia đình có từ 4 đến 3 tầng, bao gồm cả sân thượng.
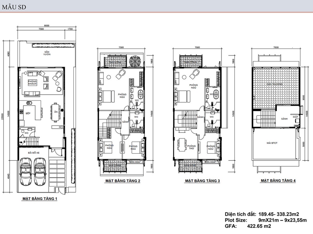
Mặt bằng biệt thự Senturia An Phú
Biệt thự của dự án nằm trong trung tâm, đối diện với shophouse và ven rạch Mương Kinh. Chỉ có 62 căn có diện tích từ 189 đến 338 mét vuông. (9.7 x 23.5 m và 11.5 x 23.5 m). Các tòa nhà khác có kết cấu 4 tầng, bao gồm 1 trệt, 2 lầu và sân thượng.













Đánh giá dự án Senturia An Phú dành cho mua ở
Sự thành công của chủ đầu tư là điều quan trọng nhất khi nói về dự án này. Họ sở hữu một khu đất có hình chữ nhật và không méo mó. nằm giữa hai khu đô thị lớn và vẫn còn 8,6 ha đất. Giáp luôn rạch Mương Kinh mang lại lợi ích phong thủy.
Đó là lý do tại sao việc quy hoạch và kiến tạo sản phẩm của dự án trở nên đơn giản. Shophouse ở mặt tiền đường lớn mang lại nhiều tiềm năng kinh doanh. Người dân của cả dự án và khu vực xung quanh luôn được tận dụng. Biệt thự và nhà phố trong khu vực lõi vẫn duy trì sự yên tĩnh và sức khỏe.
Diện tích của các căn biệt thự từ 300 đến 580 mét vuông. với kết cấu hiện đại và dễ sử dụng. Không gian thoáng mát với nhiều cây xanh là lợi thế. Điều này làm cho biệt thự và nhà phố dự án trở thành nơi an cư đắt giá.
tạo tỷ lệ 40% cho xây dựng và không phát triển chung cư. Điều này đảm bảo không gian thoáng đãng và mật độ sinh sống trung bình. Quy hoạch dự án của chủ đầu tư Tiên Phước đã được thực hiện rất tốt.





Đánh giá cao tài năng quy hoạch và tầm nhìn của chủ đầu tư Tiên Phước
Chủ đầu tư cũng làm rất tốt mặt bằng Senturia An Phú về tổng thể và chi tiết. chuyên gia đã xem xét toàn bộ thông tin của bằng dự án để khách hàng có thể hiểu. Hy vọng cơ hội đón nhận đại dự án không có chung cư cao tầng sẽ không bị bỏ lỡ.